Portfólio

Objavte rozmanitú škálu projektov, na ktorých sme mali tú česť pracovať. Naše portfólio prezentuje naše odborné znalosti v oblasti rezidenčnej, komerčnej, výrobnej a verejnej výstavby, pričom zdôrazňuje náš záväzok k funkčným priestorom, udržateľnému dizajnu a estetickej dokonalosti. Preskúmajte naše minulé práce a inšpirujte sa pre svoj vlastný projekt

Bytová výstavba

Občianska vybavenosť

Obchod a služby

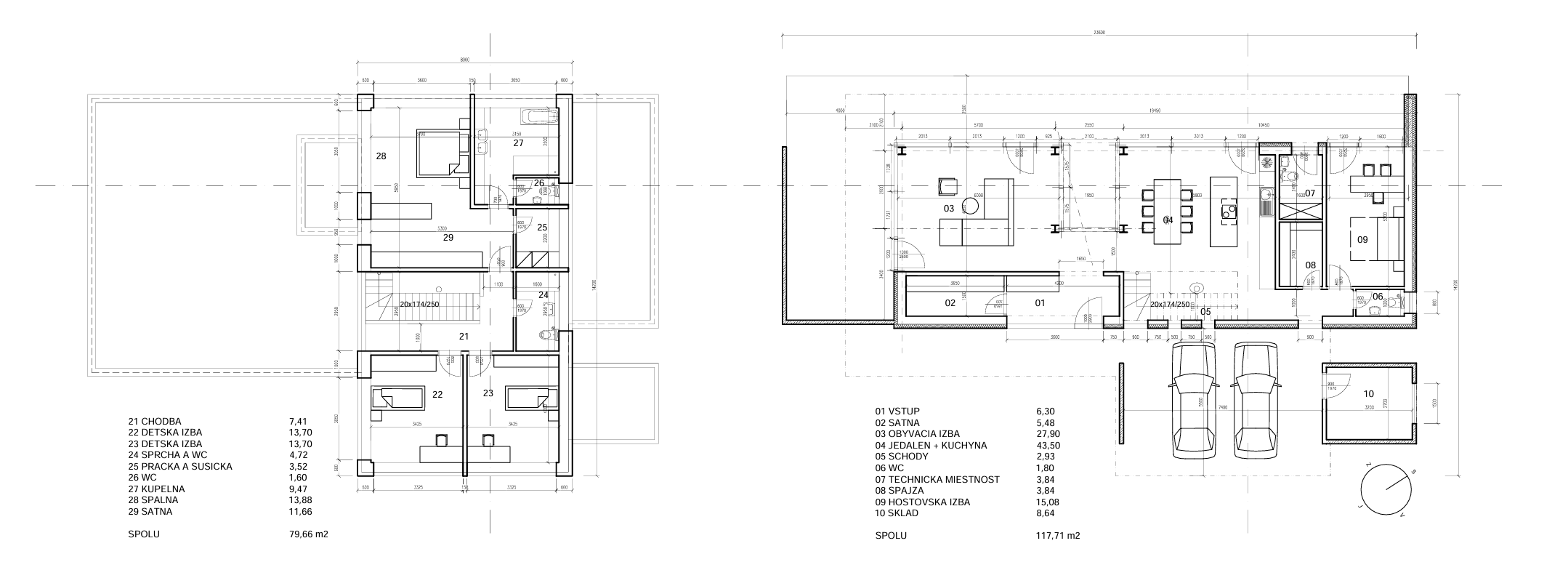
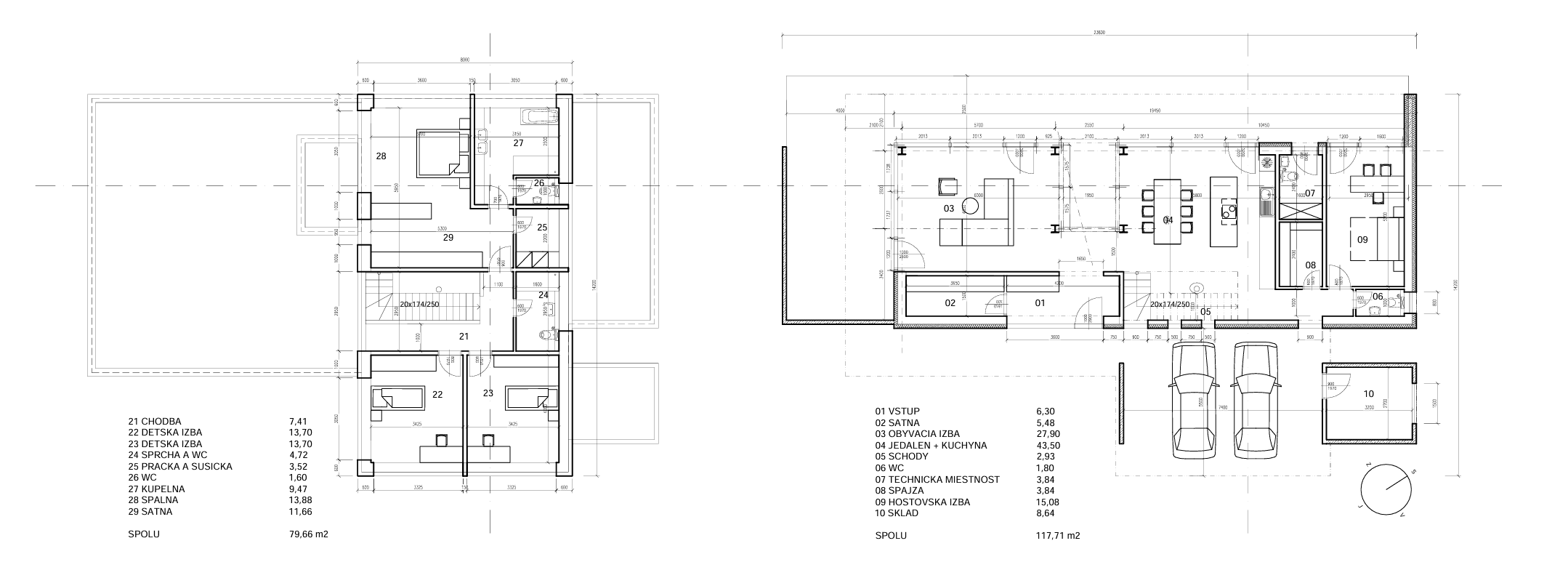
Rodinné domy

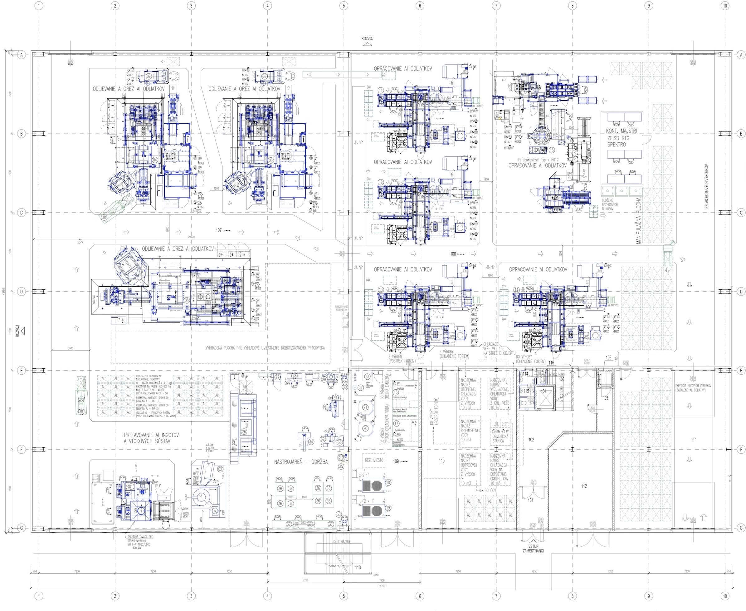
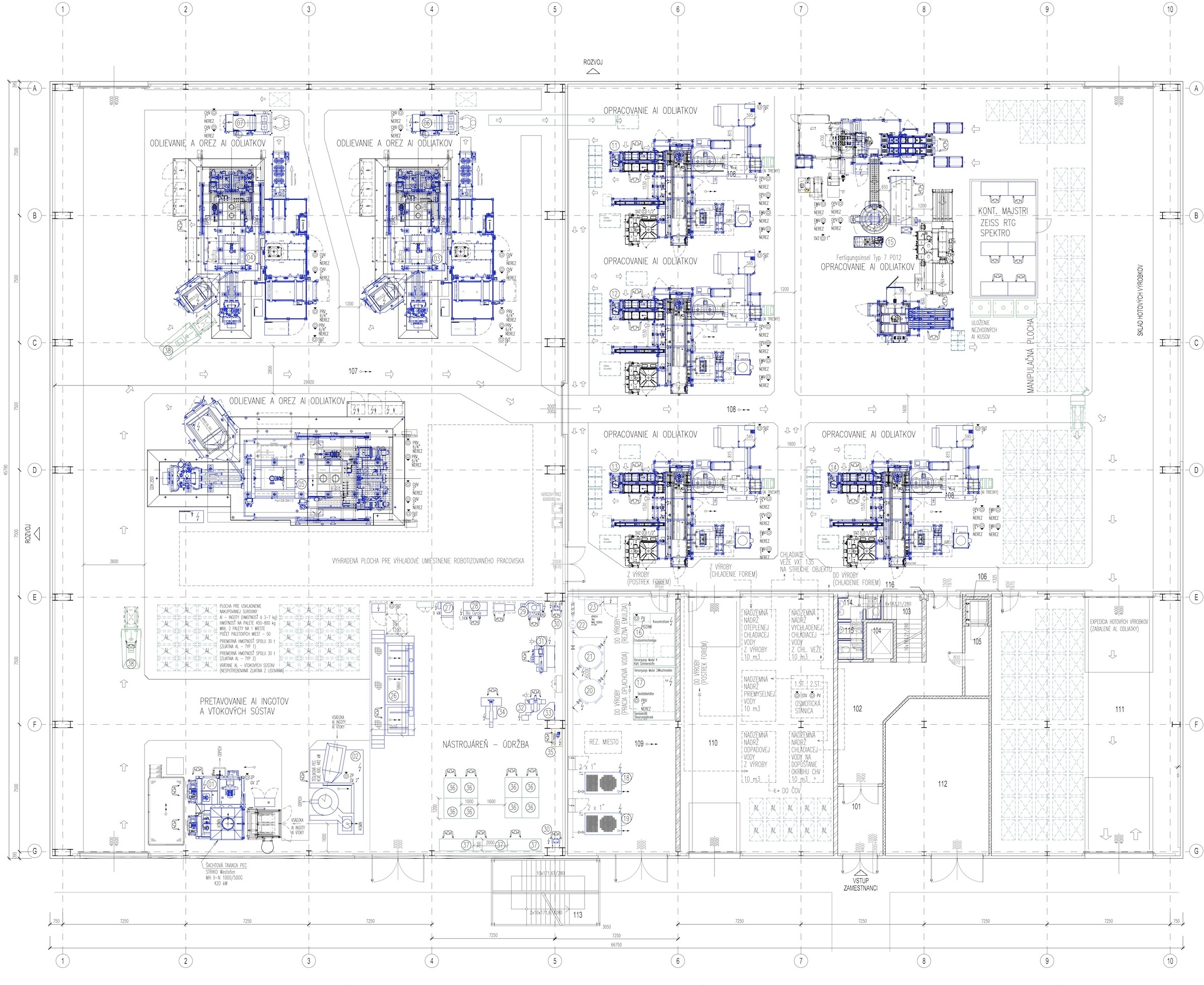
Výrobné a skladové haly